
111 Pradera Dr,
Greenville, Texas 75402

Call Us Today!
(903) 551-6444
What We DO
Our Process
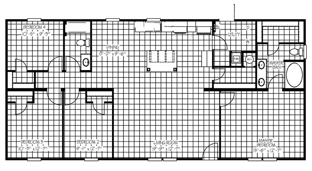
FLOOR PLAN DETAILS
BEDS: 4 BATHS: 2 SQ FT: 1568 W X L: 28X56
BUILT BY: JESSUP
Be the first and only owner to live in this beautiful, brand-new 4 bedroom, 2 bathroom home, designed with comfort and functionality in mind. This home is newly built and comes fully equipped with everything you need to settle in with ease. The spacious, open-concept layout features a generous living room that flows into a modern kitchen with a center island, perfect for meal prep or gathering with family. There's plenty of space for a dining table, making it ideal for both everyday living and entertaining. Enjoy the convenience of brand-new appliances, including a stove, refrigerator, and dishwasher, plus washer and dryer connections. This fully electric home is built for efficiency and ease of maintenance. The master suite offers a private escape with a large walk-in closet and a stylish glass door stand-up shower in the en-suite bathroom. Don't miss your chance to own a brand-new, move-in ready home in a welcoming community-schedule your tour today!
3D TOUR
FACTS & FEATURES
FLOOR PLAN












© 2026. Pradera Estates. All rights reserved.
Terms of Service|Site Map
Pradera Estates operates under RBI License Number: MHDRET00038560 and
is regulated by the Texas Department of Housing and Community Affairs (TDHCA).